Ventaflex PUR-Hartschaum T-Stück 45° rund NW920/650, glatte Innenbeschichtung, grau RAL 7035
Artikelnummer:
11388010
Ausprägungscode:
VF/WD-T45/920/650/50/L:1550
Für Preisinformationen bitte anmelden
oder registrieren.
Datenblatt Export
Erdverlegung | Ja |
Innenbeschichtung | GFK |
Baureihe | 900 |
Material | PUR-Hartschaum |
Farbe | lichtgrau |
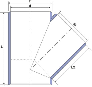
Winkel [°] [°] | 45 |
Nennweite | 920 |
Ø d außen | 1020 MMT |
Länge 1 [mm] | 1550 |
Isolierstärke [mm] | 50 |
T-Stück 45° aus hochdämmenden PUR-Hartschaum, Innenbeschichtung mit GFK brilliant ( Glasfaserverstärkter Kunststoff )
T-Stück 45° aus hochdämmenden PUR-Hartschaum, Innenbeschichtung mit GFK brilliant ( Glasfaserverstärkter Kunststoff )